BELLAFILARQUITECTES

Albert Massagué + Marta Andreu

  • Work
  • About
  • Contact
  • Log

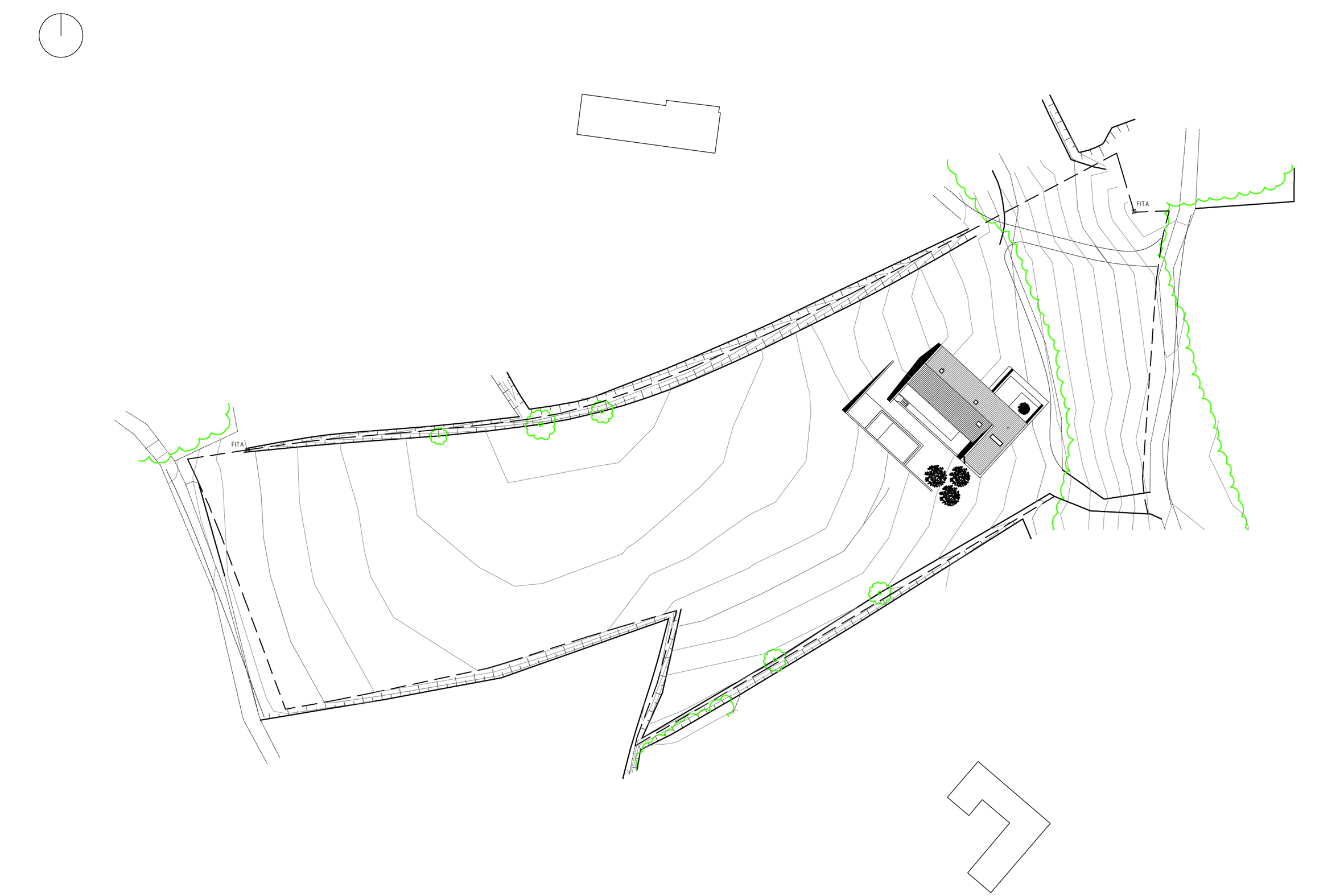
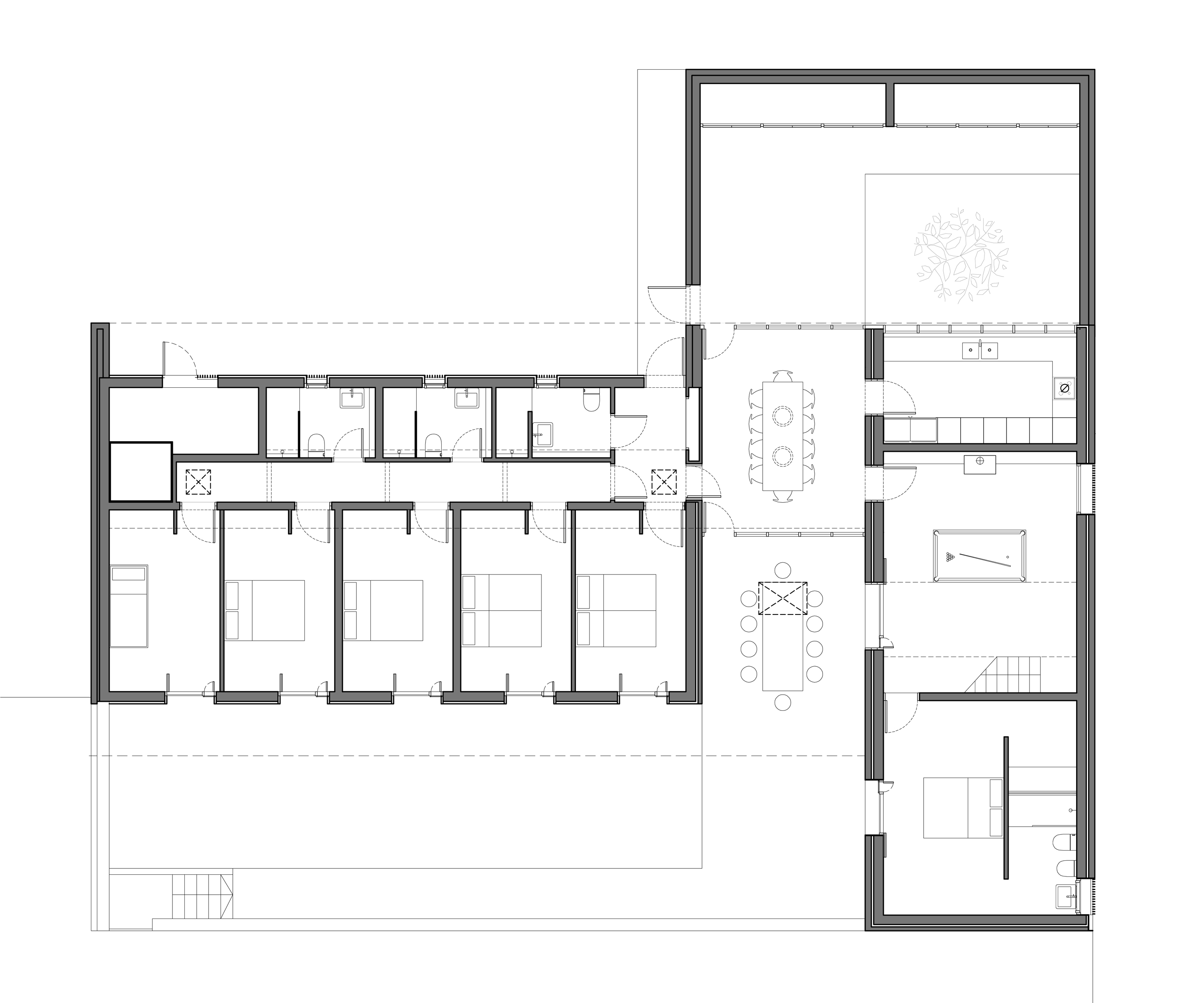
Casa S1

Vivenda unifamiliar aislada con piscina en Camallera. (Girona)

Arquitectos: Albert Massagué y Marta Andreu
Arquitecto técnico: Quim Ros
Cálculo estructural: Sustenta
Constructor: Lluís Sabater
Carpintería: Bienvenido Loste
Instalaciones: Agustí Piferrer

Date
2015
Type
Edificación
URL
www.archilovers.com/projects/153775/House-S1.html

BELLAFILARQUITECTES. Ronda del Carril 73 08530 La Garriga (Barcelona) Spain

Made with  Carbonmade
Casa S1
←
Next:
Casa S1 interiores
→